Bürstfinish: Klare Form zum attraktiven Preis
- Vielfältige Spülenfamilie mit klarer Formgebung
- Elegant-moderne Randgestaltung mit IF-Flachrand
Daten:
- Maße: B 860 x T 500 mm
- Beckengröße: 345 x 420 x 160 mm
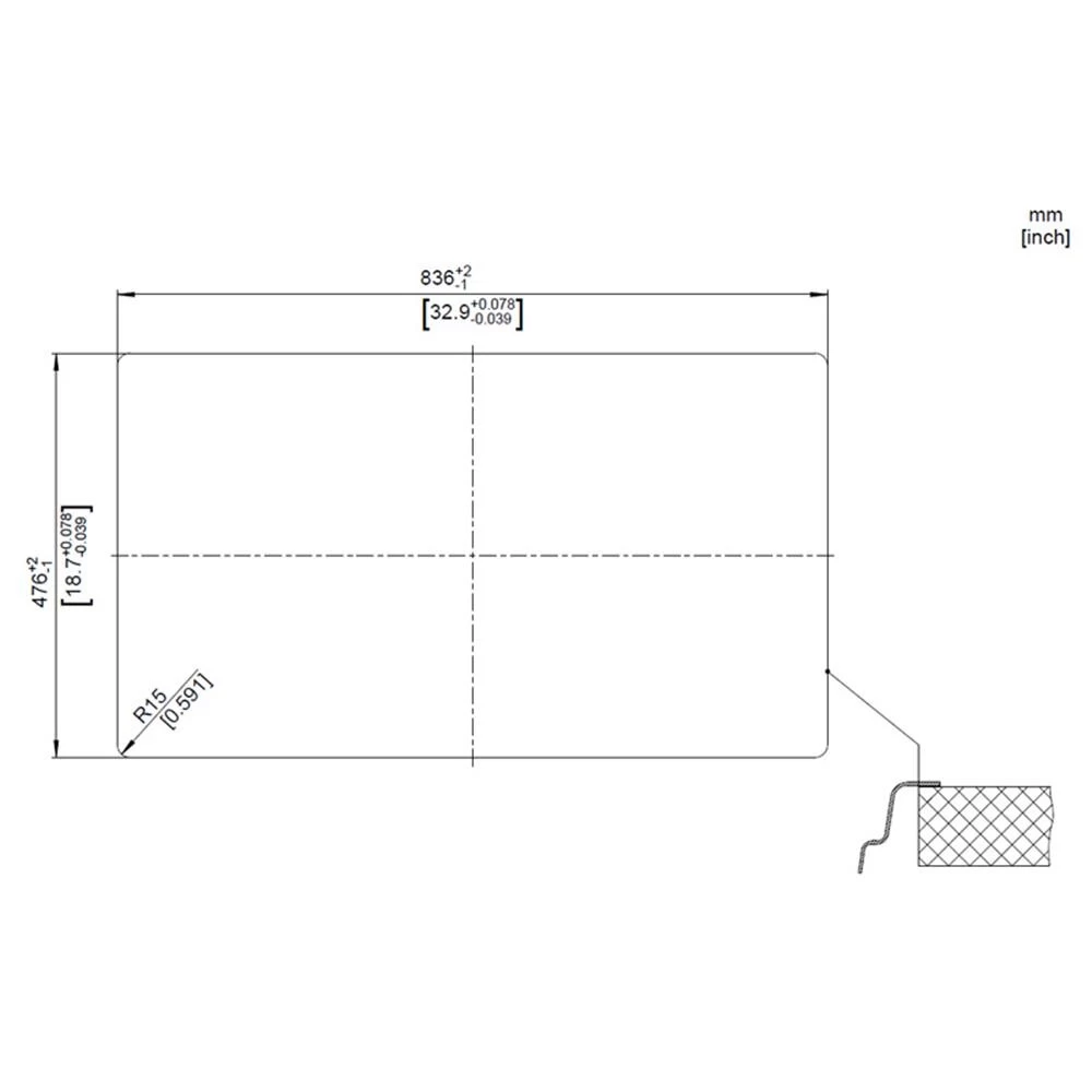
- Ausschnittmaße: 836 x 476 mm
- Oberfläche: Edelstahl Bürstfinish
- Reversibel einsetzbar (als Becken links oder rechts verwendbar)
- Einbaubar im Unterschrank ab 45 cm Schrankbreite
Lieferumfang/Details:
- Ablaufgarnitur mit Raumsparrohr
- 3 1/2“ Korbventil
- Ablauffernbedienung
Optionales Zubehör:
- 220573 Geschirrkorb aus Edelstahl
- 517666 CapFlow Auslaufabdeckung
Empfehlung
Küchenarmatur:
- 520282 BRAVON-S Chrom
Planungshinweise:
- Spülenschrank von mindestens 45 cm Breite erforderlich
- Spüle mit IF-Flachrand: aufliegender Einbau von oben auf der
Arbeitsplatte, oder flächenbündig einbaubar - Ausschnitt-Daten für beide Einbau-Verfahren finden Sie auf der
Website



















Rezensionen
Es gibt noch keine Rezensionen.