>> Flächenbündige Spüle (also flächenbündig mit der Arbeitsplatte einbaubar).
Diese Einbauart ist grundsätzlich nur bei Stein-Arbeitsplatten möglich.
- Großes Becken für maximalen Komfort auf kleinem Raum
- Durchgehende Batteriebank mit viel Platz für die Küchenarmatur und weitere funktionale Elemente
- Modernes Design mit klarer Linienführung
- Besonders gut unterbündig einbaubar, dank speziell auf diese Einbauart abgestimmter Radien
Daten:
- Maße: B 505 x T 500 mm
- Beckengröße: 445 x 350 x 190 mm
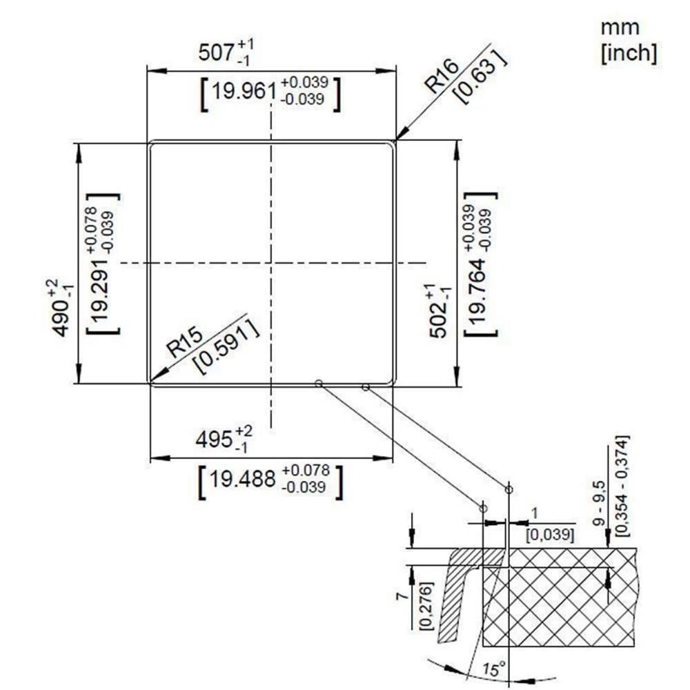
- Ausschnittmaße: 507 x 502 mm
- Einbaubar im Unterschrank ab 50 cm Schrankbreite
- Material/Oberfläche: Silgranit in verschiedenen Farben
Im Lieferumfang enthalten:
- Ablaufgarnitur mit Raumsparrohr
- 3 1/2“ Korbventil
- Ablauffernbedienung
Optionales Zubehör:
- Bitte klicken Sie dazu den Reiter „Zubehör“ an.
Empfehlung Küchenarmatur:
- BLANCO TIVO-S





















Rezensionen
Es gibt noch keine Rezensionen.